物业对装修如何审图

2024-10-21 18:36:23

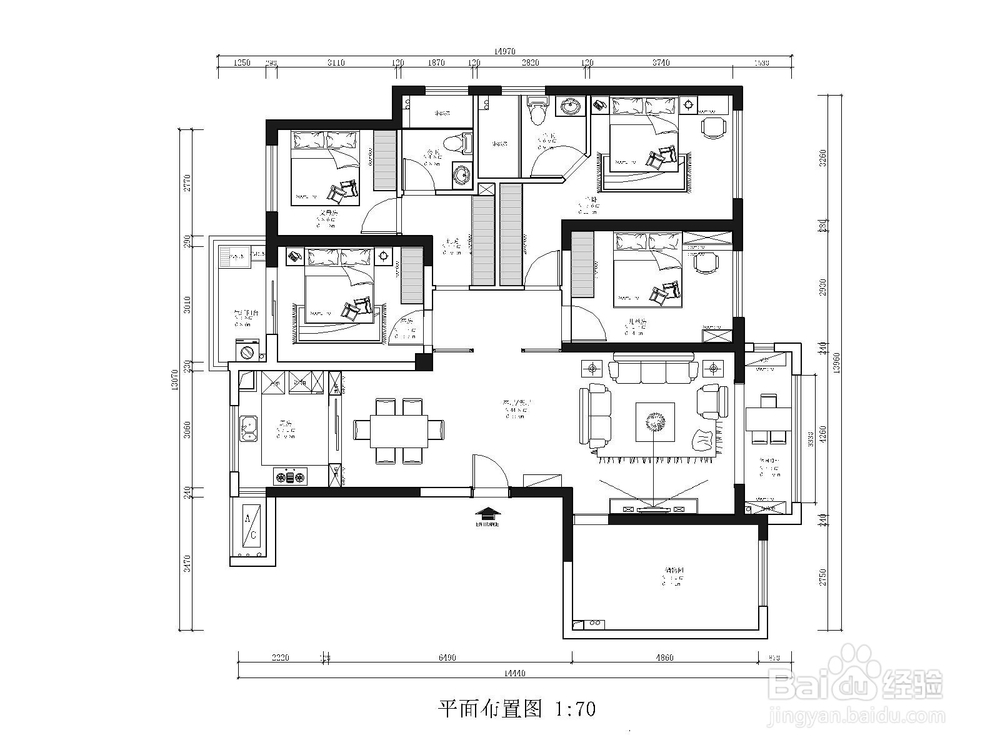
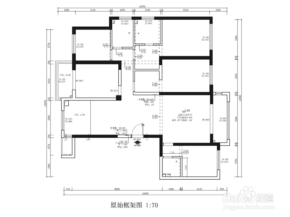
1、首先要打印两张图,一张是原始图,一张是平面布置图,带到物业过去会有专门人员进行审核。

物业对装修如何审图

2、物褂偶裢蜮业主要是要审核,承重墙体有没有擅自改动,有没有破坏外观结构,审核三天左右,就会给你办理装修许可证,你就可以安排工人进场装修了。

物业对装修如何审图
猜你喜欢